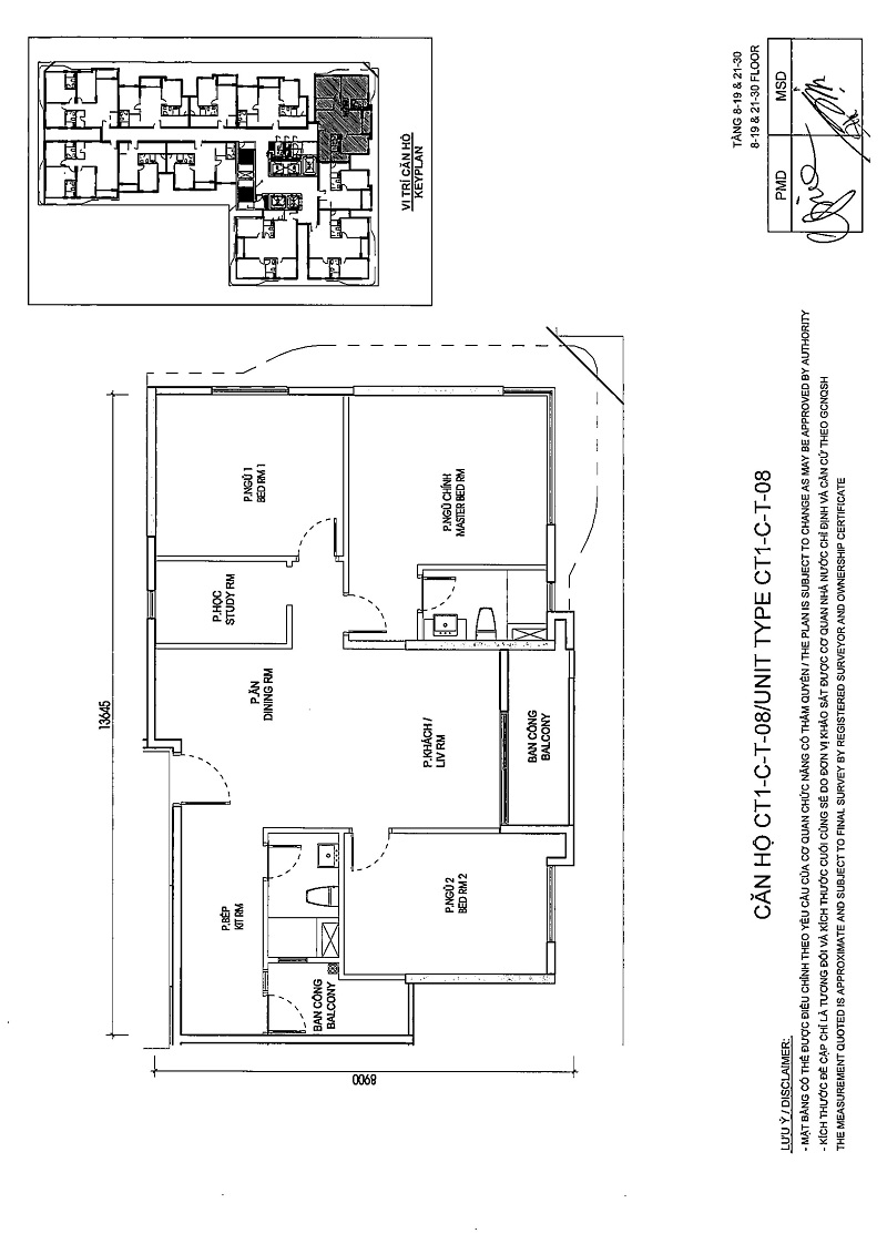
Thiết kế căn 08 tòa C the Zen Residence Khu đô thị Gamuda Gardens, Diện tích 106.49m2, Phòng ngủ 3+1, Hướng Cửa Tây Bắc – Ban Công Đông Nam, Đông Bắc. View Sông Hồng rất đẹp
PHÒNG KINH DOANH – CHỦ ĐẦU TƯ GAMUDA LAND
- Địa chỉ: Căn 28, TTTM Le Parc, Km 1,5 Pháp Vân, Quận Hoàng Mai, Hà Nội
- Hotline: 0919875966
BAN QUẢN LÝ KĐT GAMUDA GARDENS
- Địa chỉ: Khu Đô Thị Gamuda Gardens, Km 4,4 Pháp Vân, Quận Hoàng Mai, Hà Nội
- Hỗ trợ thủ tục: 0969164638
The ZEN Residence Gamuda Gardens nhận giải thưởng “Khu căn hộ tốt nhất Hà Nội“.


Tin xem thêm
Căn hộ chung cư Gamuda City Yên Sở mở bán từ CĐT Gamuda Land
LePARC Gamuda City Yên Sở mở bán từ Chủ đầu tư Gamuda Land
Gamuda Central Park; Căn hộ chung cư Gamuda Land Yên Sở Hà Nội
Căn hộ chung cư HH2 Gamuda Land Yên Sở Hoàng Mai Hà Nội
Quy hoạch liên kết vùng Vinhomes Olympic Hà Nội
Khu đô thị Gamuda Lakes Yên Sở Hà Nội của Gamuda Land Malaysia
The Ambience – Dự án căn hộ cao cấp tại Hải Phòng do Gamuda Land Việt Nam phát triển
Dự án Gamuda Hải Phòng được Gamuda Land đầu tư 1000 tỷ đồng
Căn hộ chung cư Galia Yên Sở Hà Nội của Tân Á Đại Thành
Giới thiệu Vinhomes Global Gate Cổ Loa Đông Anh Hà Nội
Hà Nội Melody – Giá gốc tầng đẹp Chiết khấu cao
Giới thiệu chung cư Hưng Thịnh Linh Đàm