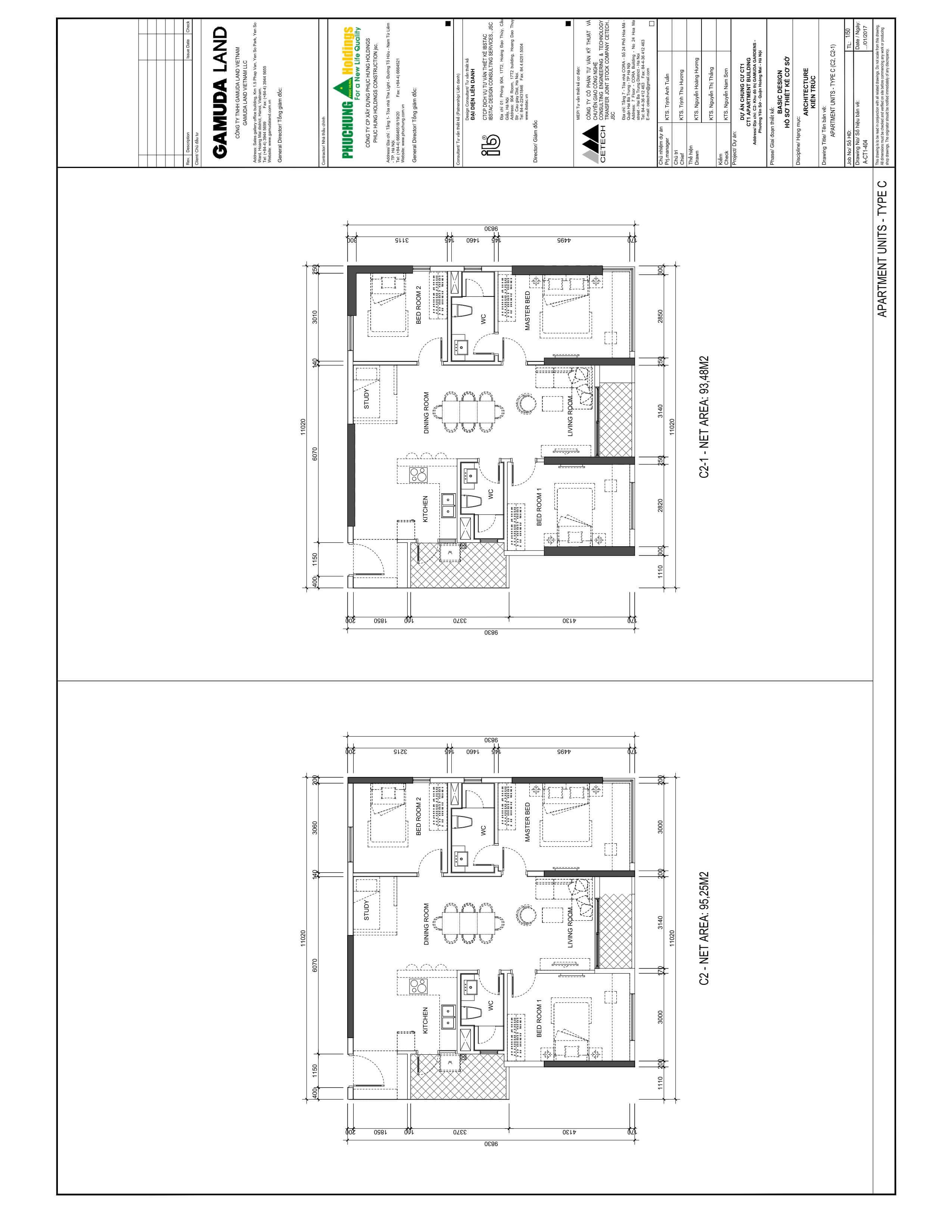
Bản vẽ cad căn hộ 3PN, C2, diện tích 95.25m2 căn hộ chung cư The Zen Residence Khu đô thị Gamuda Gardens, Phường Trần Phú, Quận Hoàng Mai, Hà Nôi

Thiết kê 3D căn hộ 3PN, C2, diện tích 95.25m2 căn hộ chung cư The Zen Residence
“GAMUDA LAND VIỆT NAM – NHÀ KIẾN TẠO ĐÔ THỊ XANH”
Hotline: 0919875966
Website: https://gamudalakes.vn/


 
		
Tin xem thêm
The Ambience – Dự án căn hộ cao cấp tại Hải Phòng do Gamuda Land Việt Nam phát triển
Dự án Gamuda Hải Phòng được Gamuda Land đầu tư 1000 tỷ đồng
Căn hộ chung cư Galia Yên Sở Hà Nội của Tân Á Đại Thành
Giới thiệu Vinhomes Global Gate Cổ Loa Đông Anh Hà Nội
Hà Nội Melody – Giá gốc tầng đẹp Chiết khấu cao
Giới thiệu chung cư Hưng Thịnh Linh Đàm
Mở bán Dragon Ocean Geleximco, Đồi Rồng, Đồ Sơn, Hải Phòng
HIỂU NHƯ THẾ NÀO VỀ THỬA ĐẤT, LÔ ĐẤT?
Căn hộ văn phòng lưu trú Officetel TRINITY TOWER MỄ TRÌ
Thiết kế căn hộ 3D chung cư Trinity Tower Mễ Trì
CHUNG CƯ TRINITY TOWER 145 HỒ MỄ TRÌ, NHÂN CHÍNH, THANH XUÂN
Shop House Thương mại khối đế The Landmark Ecopark