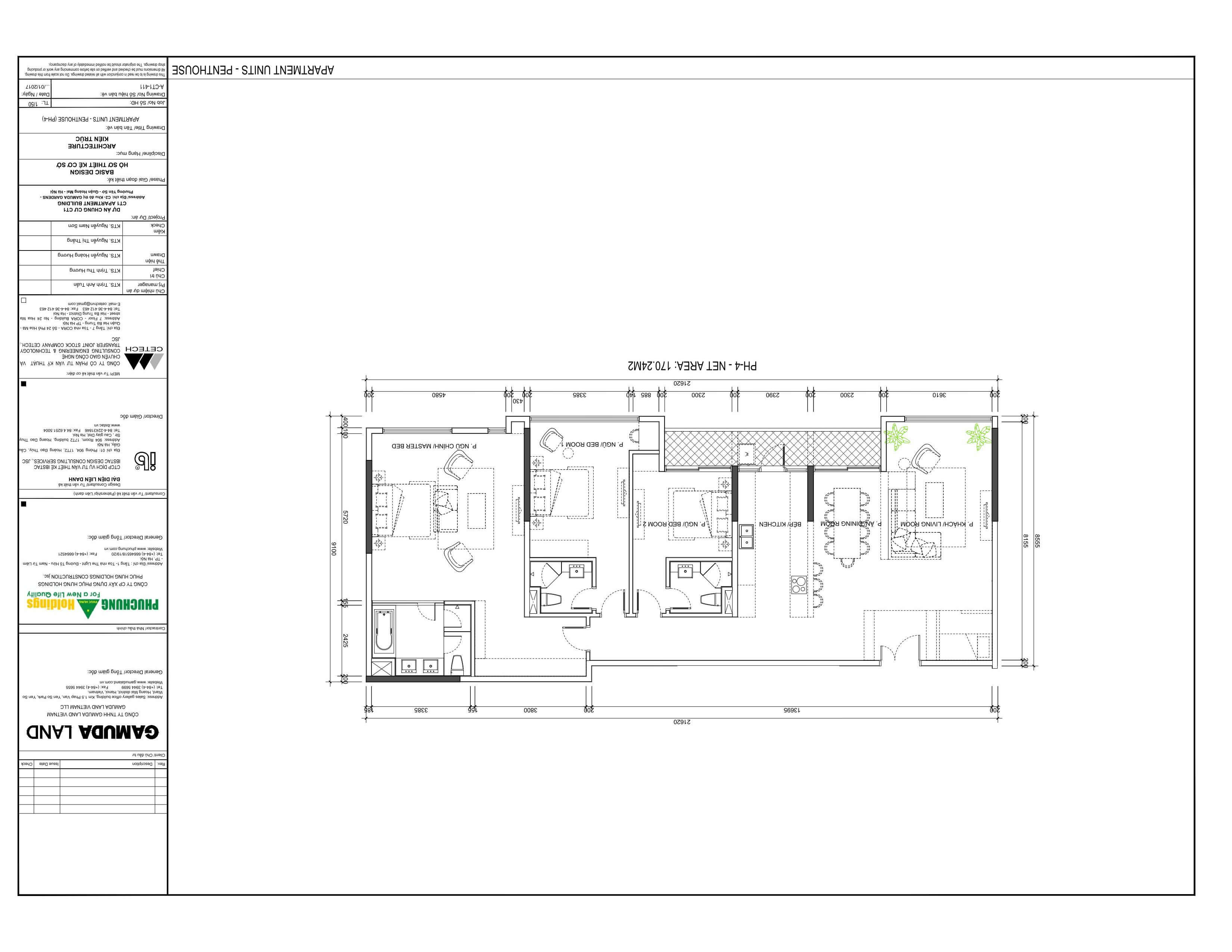
Bản vẽ cad căn hộ penthouse PH4, diện tích 170,24m2,chung cư The Zen Residence Khu đô thị Gamuda Gardens, Phường Trần Phú, Quận Hoàng Mai, Hà Nôi

Thiết kế căn hộ penthouse PH4, diện tích 170,24m2, chung cư The Zen Residence Khu đô thị Gamuda Gardens
“GAMUDA LAND VIỆT NAM – NHÀ KIẾN TẠO ĐÔ THỊ XANH”
Hotline: 0919875966
Website: https://gamudalakes.vn/


Tin xem thêm
Căn hộ chung cư HH2 Gamuda Land Yên Sở Hoàng Mai Hà Nội
Quy hoạch liên kết vùng Vinhomes Olympic Hà Nội
Khu đô thị Gamuda Lakes Yên Sở Hà Nội của Gamuda Land Malaysia
The Ambience – Dự án căn hộ cao cấp tại Hải Phòng do Gamuda Land Việt Nam phát triển
Dự án Gamuda Hải Phòng được Gamuda Land đầu tư 1000 tỷ đồng
Căn hộ chung cư Galia Yên Sở Hà Nội của Tân Á Đại Thành
Giới thiệu Vinhomes Global Gate Cổ Loa Đông Anh Hà Nội
Hà Nội Melody – Giá gốc tầng đẹp Chiết khấu cao
Giới thiệu chung cư Hưng Thịnh Linh Đàm
Mở bán Dragon Ocean Geleximco, Đồi Rồng, Đồ Sơn, Hải Phòng
HIỂU NHƯ THẾ NÀO VỀ THỬA ĐẤT, LÔ ĐẤT?
Căn hộ văn phòng lưu trú Officetel TRINITY TOWER MỄ TRÌ